2026.03.13



| 物件No.(問合せ番号) | FM-26079 |
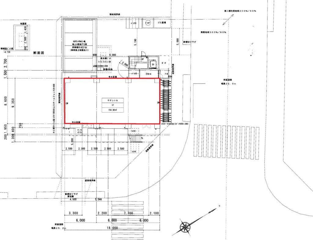
| 所在地 | 福岡市南区塩原3-2-15 |
|---|---|
| 推奨科目 | 心療内科、皮膚科、内科 その他、お問い合わせください。 |
| 概要 | 最寄駅:西鉄天神大牟田線 大橋駅 徒歩 10分 JR鹿児島本線 竹下駅 徒歩 7分 構造:鉄筋コンクリート造 地上11階 築年月:2022[R4]年 8月 駐車場:有 平置6台 機械2台 階数:1階 面積:46.82坪(154.8㎡) 賃料:693,000円(税込) 敷金:4ヶ月 引渡し時期:即時 引渡し方法:スケルトン |
| 備考 | 【公開情報テナント案件については成約スピードが速く、 場合により既に賃貸先が決まっている場合もございますので、予めご了承ください。 物件の情報はお気軽にお問い合わせください。】 |