2026.02.06



| 物件No.(問合せ番号) | FM-26052 |
| 所在地 | 福岡市南区大橋3-31-20 |
|---|---|
| 推奨科目 | 内科、心療内科 など |
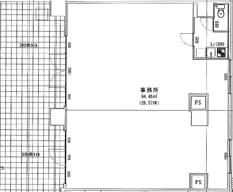
| 概要 | 最寄駅:西鉄天神大牟田線 大橋駅 徒歩 13分 構造: 鉄筋コンクリート造 地上11階 築年月:2026[R8]年 2月 駐車場:有り(前面) 備考:[エレベーター] 有、24時間入出可。看板料相談。鍵交換費実費。 階数:1階 面積:28.57坪(94.45㎡) 賃料:379,500円(税込) 敷金:5ヶ月 引渡し時期:2026年3月 引渡し方法:事務所仕上げ 町費:300円/月 駐車場:テナント専用区画あり(13,200円/月) |
| 備考 | 【公開情報テナント案件については成約スピードが速く、 場合により既に賃貸先が決まっている場合もございますので、予めご了承ください。 物件の情報はお気軽にお問い合わせください。】 |