2025.10.17


※Photoは周辺イメージです。

| 物件No.(問合せ番号) | FC-25229 |
| 所在地 | 福岡市中央区大手門1丁目 6-1 |
|---|---|
| 推奨科目 | お気軽にご相談ください。 |
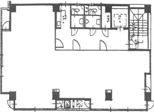
| 概要 | 福岡市空港線大濠公園駅 徒歩:6分 福岡市空港線赤坂駅 徒歩:9分 構造 : 地上5階/2階部分 面積 : 118.08㎡ (約35.72坪) 築年月:1996年4月 駐車場:無 賃料などご相談ください。 引渡し時期:相談 現況 :空家 |
| 備考 | 【公開情報テナント案件については成約スピードが速く、 場合により既に賃貸先が決まっている場合もございますので、予めご了承ください。 物件の情報はお気軽にお問い合わせください。】 |